For sale. From €490,000. 15 Really unique and luxurious apartments with sea views. Estepona. Apartment for sale in Altos de Estepona, 490.000 €
Description
Impressive new construction project, with 15 high-end apartments, with five homes in each block, many with extraordinary sea views.
This remarkable premium project, has been carefully designed by a renowned architect with extensive experience and with several awards of merit recognition for their exquisite work, unfolding luxury indoor and outdoor living, combining comfort with the highest standards of quality, embracing memorable vibrant lifestyle experiences under the wonderful Mediterranean sun, just 220 meters walk to the beach.
Exquisite designed and finishes homes, with large glass windows, to allow the sunshine to flood the rooms throughout with natural light to met with panoramic views, a maximised sense of space living room which combine the dining area and the kitchen. The 2-bedroom apartments have 2 bathrooms and 1 toilet, and the 3-bedroom penthouses have 2 bathrooms and 1 toilet, and a staircase leading to the roof terrace with panoramic sea views that take your breath away.
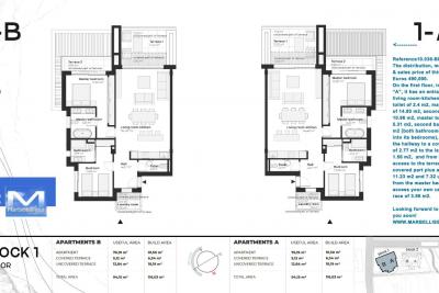
∆ Distribution of the apartments in the building:
» Building height: Ground floor, first floor and penthouses with spacious rooftop terraces.
» Blocks: 3 with 5 apartments each.
» Homes per floor:
- 2 Apartments with 2 bedrooms on the ground floor
- 2 apartments with 2 bedrooms on the first floor and
- 1 Penthouse with 3 bedrooms.
- Built meters from 116.03 M2 to 208.22 M2.
- Terrace meters from: 24.53 M2 and up to 317.68 M2.
- All beautiful ground floor, are corner apartments, with lush private gardens, adding extra style touches to your own space.
Gated community with maximum privacy, exquisite green area with picturesque garden and outdoor pool where you can also nurture and strengthen your days of joy and well-being with your loved ones and neighbouring residents, it also has video surveillance to bring peace of mind to your loved ones, and basements for parking with elevators.
∆ Finished work / In progress: » Off-plan.
» Building License granted.
» Construction started: Q3 2024 (August 2024).
» Tax type: 10% IVA.
∆ Payment Terms*:
» €6,000 Reservation + VAT
» 25% + VA of PVP (minus reservation) on Signing Private Purchase Contract
» During construction 15% + VAT of PVP
» Deeds 60% + VAT
About Reference 10.036-BLk1-1A
The distribution, measurements, and sales price of this apartment is Euros 490,000.
With Reference10.036-BLk1-1A located on the first floor, in block 1, it has an entrance hallway, living-dining room-kitchen of 34.48 m2, toilet of 2.4 m2, master bedroom of 14.80 m2, second bedroom of 10.96 m2, master bathroom of 5.31 m2, second bathroom of 3.55 m2 (both bathrooms incorporated into its bedrooms), access from the hallway to a covered terrace of 2.77 m2 onto the laundry room of 1.56 m2, and from the living room access to the terrace of 3.92 m2 covered part, plus an additional 11.23 m2 and 7.32 uncovered. And from the master bedroom you access your own uncovered terrace of 3.96 m2. I enclose the floor plan so that you can appreciate it better and I invite you to a visit.
Looking forward to hearing from you soon!
Features
Surfaces
Status
Services
Security
Price
490.000 €
Mortgage
MONTHLY FEE
---
Total amount
Property + expenses - entrance
---
See breakdown
---
The results are indicative and not binding and are calculated on the basis of the data entered.
Energy certificate
|
CALIFICACIÓN ENERGÉTICA
|
Consumo energía kW h / m2 año |
Emisiones CO2 kg CO2 / m2 año |
|---|---|---|
| A | ||
| B | ||
| C | ||
| D | ||
| E | ||
| F | ||
| G |
Similar properties
For sale. Apartment in Lorcrimar, near Puerto Banús. Mar...
Super convenient location in a quiet urbanization but...
Super convenient location in a quiet urbanization but close to the beach and the famous Puerto Banus....
Apartment for sale in Estepona
Bedrooms: 3 |Bathrooms: 2. | Outdoor Terrace: 276,04...
Bedrooms: 3 |Bathrooms: 2. | Outdoor Terrace: 276,04 sqm | Built: 130 sqm. | Total built: 434,12 sqm...














