For Sale. Beachfront semi-detached Villas. Las Chapas, Marbella. Under Construction 2025. House for sale in Las Chapas-El Rosario (Marbella), 5.002.000 €
Description
Dreams are infinity and what’s yours? Outdoor living all year long in the Sunny Marbella, Oceanfront.
∆ 32 remarkable Semi-detached of 3 and 4 bedrooms, built from 200 – 350 sqm interior and 215 – 380 sqm exterior. All with private pool and / or jacuzzi.
∆ And 64 stunning apartments from 2 bedrooms, built from 160 – 450 sqm interior and 80 – 250 sqm exterior. All with private pool and / or jacuzzi.
About REF 9800-202R1
Sales price: 5.002.000 euros.
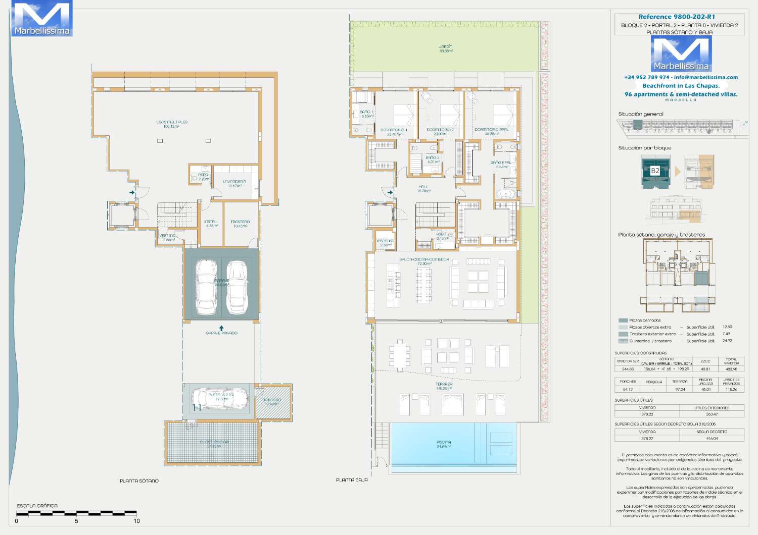
This lovely home has a ground floor, private garden, basement, 2 garages, and storage room.
Living space built surfaces housing 244.88 m2. Constructed surfaces of the basement of 198.29 m2: Useful of 156.64 square meters plus 41.65 square meters of garages. Porches of 54.12 m2. Terrace of 97.04 m2. Pool or Jacuzzi area of 46.01 m2. Private garden of 115 m2.
» Distribution on the ground floor:
Outdoor pool of 34.84 m2. A private garden of 83.38 m2. Total built terrace of 145.25 m2. Living room-kitchen-dining room of 72.30 m2. Bedroom number 1 of 22.40 m2. Bathroom number 1 of 6.65 m2. The bedroom number 2 of 20.03 m2. Bathroom number 2 of 6.31 m2. The master bedroom has 45.35 m2. The master bathroom has 8.64 m2. Corridor of 18.70 m2. Pantry of 2.36 m2. Toilet of 3.15 m2.
» Distribution in the basement:
Multi-use space of 100.12 m2. Pool installation room 24.92 m2. Parking space 12.50 m2. Storage room of 7.49 m2. Additional garage space of 38 m2. Installation room of 6.75 m2. Storage room of 10.43 m2. Hall: 2.66 m2. A toilet 2.70 square meters. Laundry room of 10.67 m2.
∆ Building License (LOM):
» Semi-detached Villas: In place
» Apartments: In Place
∆ Construction start:
» Semi-detached Villas: Q4 2022
» Apartments: Q2 2023
∆ The completion of the work is expected to:
» Semi-detached Villas: Second semester of 2025
» Apartments: Second semester of 2025
∆ Payment Terms:
» Reservation Deposit: 1% +VAT of sales price
» Private Purchase Contract: 29% + VAT in 30 Days
» Deferred 10%:
• Phase II R2 April 2025
• Phase I R1 April 2025
• Phase II R1 June 2025
» Title Deed: 60% + VAT
Looking forward to hearing from you soon.
Features
Surfaces
Status
Services
Security
Price
5.002.000 €
Mortgage
MONTHLY FEE
---
Total amount
Property + expenses - entrance
---
See breakdown
---
The results are indicative and not binding and are calculated on the basis of the data entered.
Energy certificate
|
CALIFICACIÓN ENERGÉTICA
|
Consumo energía kW h / m2 año |
Emisiones CO2 kg CO2 / m2 año |
|---|---|---|
| A | ||
| B | ||
| C | ||
| D | ||
| E | ||
| F | ||
| G |
Situation and surroundings
Las Chapas-El Rosario


















