For sale. Beachfront fully furnished Penthouse with stunning sea views and jacuzzi, ready to move in. Casares. Penthouse for sale in Bahía de Casares, 429.000 €
Description
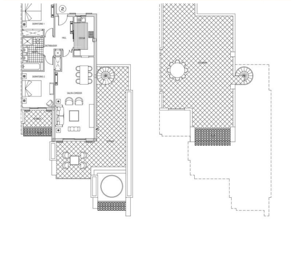
This lovely fully furnished second floor penthouse with 81 m2 roof terrace enjoy breathtaking mediterranean sea views. It comprises of an entrance hallway, living room with sliding glass doors that provide plenty of light and lead to main terrace of 61 m2, with jacuzzi BBQ, with a staircase leading to the upper terrace. Furthermore 2-bedrooms (the master bedroom has access to its own terrace) all with fitted wardrobes, and 1 share bathrooms, equipped with hydro massage and a shower
The space also features an independent fully equipped kitchen with all necessary appliances.
Reference 2312-P2 | Height Level: 2 | Bedroom: 2 | Bathroom: 1 | M2 Interior: 80.46 m | terrace: 61 m2 | Roof Terrace: 81 | Terrace Total: 152,95 m | M2 Total: 251 m2 | Garage: 1 | Storage: 1 | Sales Price: €429.000 | The last reform was in 2020.
Additional features of the space include wooden floors, marble floors in the bathroom and ceramic floor in kitchen, air conditioning with both hot and cold options, fitted wardrobes, a safe, video entry system, two private garages, and a storage room.
Charming style of life in an idyllic location in Casares Coast. This exclusive frontline beach residence comprised of 67 luxury apartments, with unique one- and two-bedroom, from ground floor, first floor and amazing penthouses with spacious terraces and most with breath-taking views of the Mediterranean Sea, including Gibraltar and Africa. The complex features well-manicured gardens, outdoor pools for both adults and infants, sunbathing areas, and elevators for easy access.
The location is considered to be highly desirable and of great value.
Looking forward to hearing from you soon,
Features
Surfaces
Status
Services
Security
Price
429.000 €
Mortgage
MONTHLY FEE
---
Total amount
Property + expenses - entrance
---
See breakdown
---
The results are indicative and not binding and are calculated on the basis of the data entered.
Energy certificate
|
CALIFICACIÓN ENERGÉTICA
|
Consumo energía kW h / m2 año |
Emisiones CO2 kg CO2 / m2 año |
|---|---|---|
| A | ||
| B | ||
| C | ||
| D | ||
| E | ||
| F | ||
| G |
Similar properties
For sale. Apartment in Lorcrimar, near Puerto Banús. Mar...
Super convenient location in a quiet urbanization but...
Super convenient location in a quiet urbanization but close to the beach and the famous Puerto Banus....
New build 2 and 3 bedroom apartments. Sales price from €...
New development for sale, 146 homes of 1, 2, 3, bedroom,...
New development for sale, 146 homes of 1, 2, 3, bedroom, and penthouses of 3 bedroom. Phase 2, in block...















